Rakennetaan Yhdessä-podcast: Sisustussuunnittelijan luona - Vieraana Dima Latvalahti

Rakennetaan Yhdessä-podcast kutsuu sinut mukaan vierailemaan erilaisissa rakennus- ja remontointikohteissa. Kokoamme podcastin teemoja kuvien kera blogiimme, ja itse jaksot pääset kuuntelemaan tästä!

Kolmannessa jaksossa lähdemme työmaakäynnille sisustussuunnittelija Dima Latvalahden ja hänen perheensä rakenteilla olevaan kotiin. Tämän projektin ainutlaatuisuus piilee sen nerokkaissa ja huolella suunnitelluissa ratkaisuissa sekä kunnianhimoisuudessa, sillä Dima ja hänen puolisonsa Jari rakentavat kotiaan itse.

Visualisointikuvat havainnollistavat tulevaa lopputulosta. Suuri terassi yhdistää sisä- ja ulkotilat yhdeksi suureksi oleskelualueeksi.

Kaksikerroksiseen taloon olisi voitu lisätä vielä yksi kerros, mutta pari luopui ajatuksesta, sillä he halusivat keskittää oleskelutilat lähekkäin sekä pitää naapurit tyytyväisinä peittämättä heidän maisemiaan.

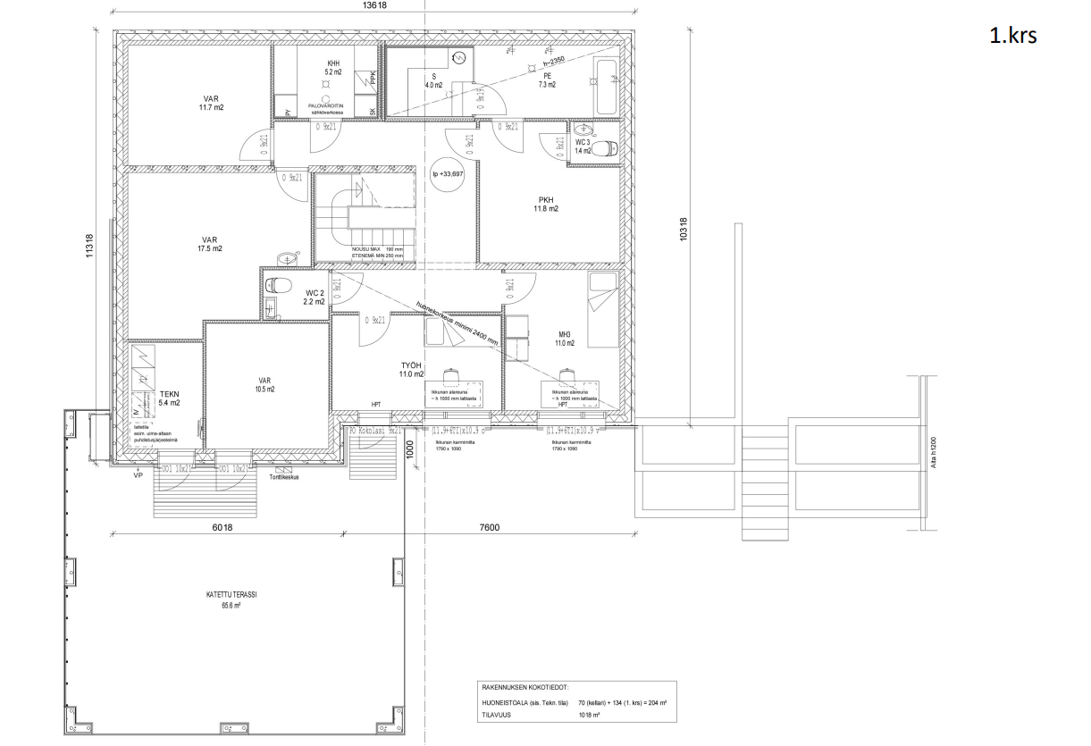
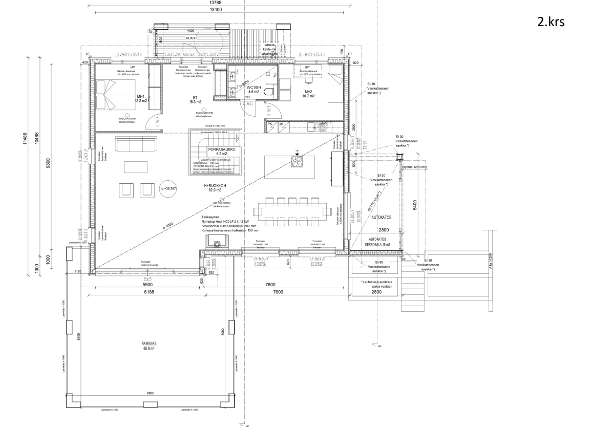
Yläkerran oleskelutiloissa päästään nauttimaan hulppeista maisemista. Myös talon pääsisäänkäynti avautuu toiseen kerrokseen. Osa maan alla sijaitsevasta rakennuksesta luetaan kellariksi, mikä mahdollisti käyttöön enemmän neliöitä, sillä kellaria ei lasketa asuintilaksi.

Yläkerrassa vietetään aikaa perheen kesken sekä nautitaan luonnon omasta taideteoksesta - ikkuinoista avautuvista maisemista. Alakerrasta löytyy muun muassa saunatilat sekä työhuone.

Parin edellinen koti oli samalla tontilla, mutta ison remontin edessä he päätyivät purkamaan vanhan talonsa pois ja rakentamaan tilalle uuden. Hartiapankilla rakentaminen vaatii huomattavasti enemmän aikaa ja panostusta, mutta tulee vastaan kustannuksissa.

Ammattitaitoinen ja kokenut vastaava työnjohtaja sekä pääsuunnittelija näyttelevät suurta roolia rakennusprojektin sujuvuuden kannalta. Kaikkea ei tarvitse opetella tekemään itse vaan ympärille kannattaa etsiä osaava ja luotettava tiimi. Muiden rakennuttajien kokemuksia voi kysyä esimerkiksi rakennusfoorumeilta tai vaikka naapurista.

 

Tämän kodin punainen matto löytyisi todennäköisesti upeiden portaiden lähettyviltä. Portaiden tukipalkkeja ei haluttu näkyviin, mikä toi suunnitteluun ja työstöön omat haasteensa. Kinkkisintä portaiden teossa oli keskitasanteen tukeminen, sillä sen haluttiin näyttävän leijuvan ilmassa.

“Lyhyestä virsi kaunis: Ihan hirveästi rautaa ja vähän väliin betonia - siinä on se resepti”, Jari kertoo portaiden rakentamisesta, sillä niiden suunnittelu ja valmistus on pääosin hänen käsialaansa.

Dima ja Jari kohtasivat rakennuslupien hakemisen aikana epäselviä perusteluita rakennusvalvonnasta, ja pyysivät prosessiin neuvoja vastaavalta työnjohtajaltaan. Valitettavaa on, että päätös luvista tuli vasta, kun väsyttävän väännön jälkeen rakennuslain mukaiset dokumentit olivat pöydällä ja he vaativat lupaa itselleen perustellen, ettei ole enää mitään mikä olisi sen esteenä.

Jotta systeemiä voidaan muuttaa, on päätösten oltava yhdenvertaisia sekä asianmukaisesti perusteltuja. Vain avoimella keskustelulla lupaprosessista saadaan läpinäkyvämpi.

Terassi aiheutti epäselvyyksiä Espoon rakennusvalvonnan kanssa, kun rakennuttajia kehotettiin pienentämään sen kokoa vedoten siihen, etteivät he lupakäsittelijän mukaan tarvinneet niin suurta terassia.

Lopulta he lyhensivät terassin mittaa kymmenenellä sentillä ainoastaan nimen vuoksi, ja lupa irtosi.

Kiinnostava yksityiskohta tuo särmää kokonaisuuteen. Varjouralistan funktio on kehystää seiniä sekä rytmittää tilanjakoa jalka- ja kattolistattomassa kodissa. Varjouralistan asentaminen ei ole nopeinta saati helpointa, mutta lopputulos palkitsee. Lopuksi lista käsitellään muun seinän kanssa samaan sävyyn.

Lapsiperheaikana rakentaminen pakottaa höllentämään arkiaskareissa. Dima suosittelee, ettei kannata tehdä enempää kuin on pakko, eikä ottaa paineita esimerkiksi kotitöistä. Rakennusprojektiin lähtiessä kannattaa keskustella perheenjäsenten kanssa omista tunteista aiheeseen liittyen ja pohtia, mitä rakennuttaminen todella vaatii, jotta kaikki ovat projektin alkaessa samalla sivulla.

Diman vinkit talonrakentajille:

  • Käytä aikaa suunnitteluun.

  • Kilpailuta toimittajia ja etsi ympärillesi hyvä tiimi.

  • Varaudu aikataulun ja budjetin venyymiseen varaamalla molempiin vähän extraa.

 
Previous
Previous

Rakennetaan Yhdessä-podcast: Ammatillisen linssin takaa kuluttajaksi - Vieraana Anna-Stina ja Erno Tähkävuori

Next
Next

Rakennetaan Yhdessä-podcast: Nokian kivitalohelmi